Et Claire Antwerp
Following the success of its first location, Et Claire brings its refined take on viennoiserie to Antwerp.
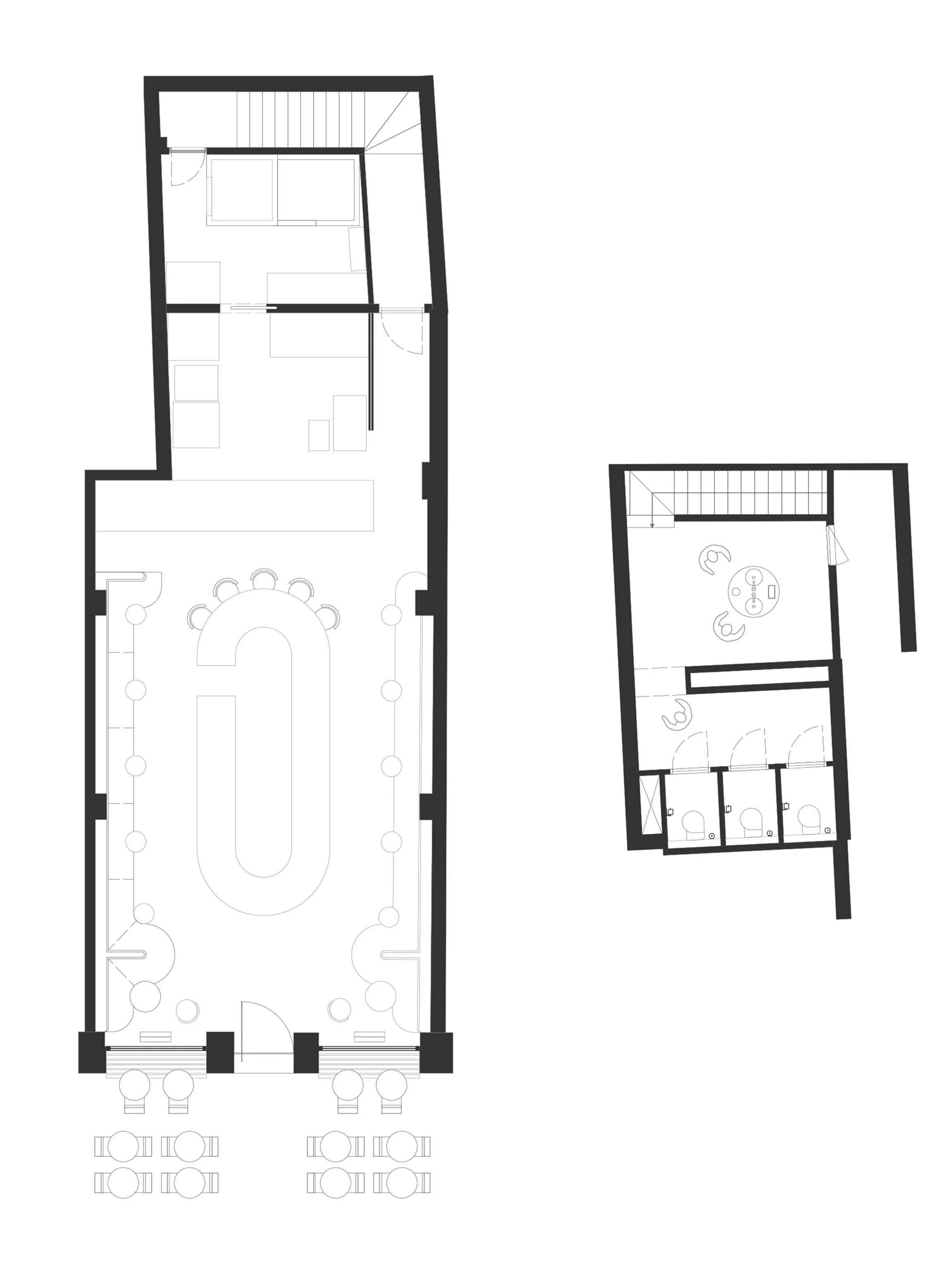
At the heart of the store is a brass, Et Claire-shaped counter, a centrepiece lined with golden pastries, expertly brewed coffee, and curated wines and champagnes. Surrounding it, soft golden seating and mirrored walls create a warm, flowing interior that feels both intimate and generous.
An open kitchen at the back reveals the craft behind each creation, connecting guests with the pâtissiers at work.
The entire space is wrapped in a buttery yellow hue, evoking calm and appetite alike.
Upstairs, uniquely designed restrooms in rich chocolate tones continue the sensory story, turning even the unexpected into part of the experience.
At Et Claire Oudaan, every detail is intentional, a place where elegance, precision, and indulgence come together seamlessly.
photography by Chantal Arnts
























